Refine Search
Location
Radius
Min Beds
Min Price
Min Price
Max Price
Max Price
Location
Radius
Min Beds
Min Price
Min Price
Max Price
Max Price
 

Regency Street, London, SW1P

LET

£692 PW (£2,999 PCM)

2
Gallery (6)

Summary

COUNCIL TAX BAND: C.

Full Description

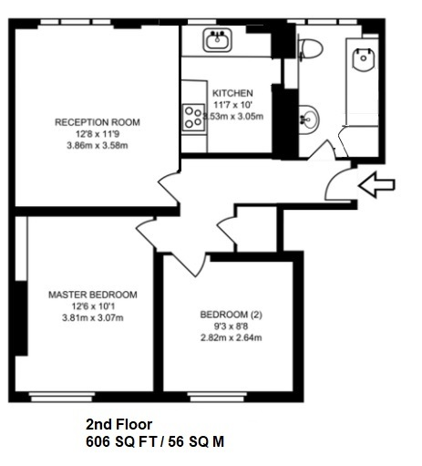
A newly refurbished two bedroom apartment on the second floor in a popular red-brick block in Westminster.
The apartment consists of a spacious living room, a modern and bright kitchen, shower room, a comfortable double bedroom and a smaller double room.
The property has been modernised throughout and would make an ideal home or pied-a-terre in central London.

Norfolk House is located on Regency Street, a convenient and well placed location in central London. A wealth of shops, amenities and means of travel are walking distance in Victoria Street and Pimlico High Street being both a ten and five minute walk respectfully. Local tube stations include St James' Park, Victoria, Pimlico and Westminster.

Viewing & Disclaimer

Viewing
Please contact us on 020 7222 7020 if you wish to arrange a viewing appointment for this property, or require further information.

Disclaimer
Bensons - SW1P endeavour to maintain accurate depictions of properties in Virtual Tours, Floor Plans and descriptions, however, these are intended only as a guide and purchasers must satisfy themselves by personal inspection.

Key Features
  • 2 Bedroom Apartment
  • 1 Bathroom
  • 2nd Floor (No Lift)
  • Central Location
  • Multiple Transport Links
  • Newly Refurbished Throughout
  • true
IE8 Alert! Cookie Alert!

To get the best possible experience using our website we recommend you upgrade to a modern web browser. More info

Location
Radius
Min Beds
Min Price
Min Price
Max Price
Max Price
Location
Radius
Min Beds
Min Price
Min Price
Max Price
Max Price