Refine Search
Location
Radius
Min Beds
Min Price
Min Price
Max Price
Max Price
Location
Radius
Min Beds
Min Price
Min Price
Max Price
Max Price
 

Ambrosden Avenue, London, SW1P

LET

£500 PW (£2,167 PCM)

1
Gallery (4)

Summary

COUNCIL TAX BAND: E - £1192 Per Annum.

Full Description

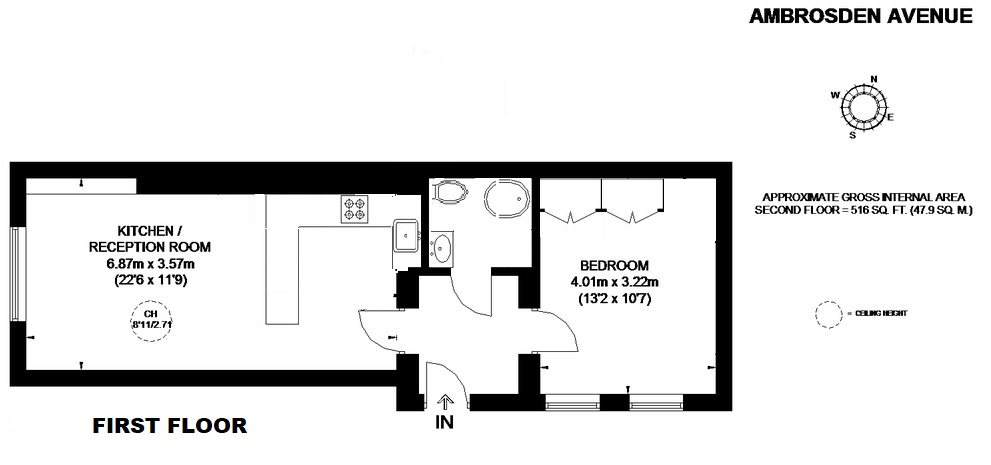
This is a fantastic and extremely well positioned one bedroom flat in the very heart of Westminster. Set on the second floor of a private building by Westminster Cathedral with high ceilings. Its close proximity to Victoria Street with its abundance of shopping and transport amenities makes living in this flat very convenient for daily use and benefits from being on a very quiet street.
Available Now.

Viewing & Disclaimer

Viewing
Please contact us on 020 7222 7020 if you wish to arrange a viewing appointment for this property, or require further information.

Disclaimer
Bensons - SW1P endeavour to maintain accurate depictions of properties in Virtual Tours, Floor Plans and descriptions, however, these are intended only as a guide and purchasers must satisfy themselves by personal inspection.

Key Features
  • One Bedroom Apartment
  • Second Floor
  • High Ceilings
  • Moments from Victoria and St James' Tube
  • Less than 1 Min Walk To Victoria Street
  • Quiet Street in Central London
  • true
IE8 Alert! Cookie Alert!

To get the best possible experience using our website we recommend you upgrade to a modern web browser. More info

Location
Radius
Min Beds
Min Price
Min Price
Max Price
Max Price
Location
Radius
Min Beds
Min Price
Min Price
Max Price
Max Price